Mehr anzeigen zum Thema Beschreibung
Beschreibung
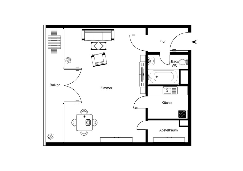
Diese gemütliche 1-Zimmer-Wohnung bietet auf praktischer Fläche alles, was man zum Wohnen braucht. Der großzügige Wohn- und Schlafbereich ist durch die großen Fensterfronten lichtdurchflutet und bietet direkten Zugang zum Balkon - perfekt für einen Kaffee am Morgen oder einen entspannten Feierabend. Der Raum überzeugt zusätzlich durch einen pflegeleichten Laminatboden. Gleichzeitig bietet die Wohnung viel Platz zur freien Gestaltung.
Die separate Küche ist kompakt, aber funktional geschnitten und bietet ausreichend Platz zum Kochen. Hier finden Herd, Ofen, Spüle sowie Ober- und Unterschränke ihren Platz. Zusätzlich befindet sich hier eine Stellmöglichkeit und der Anschluss für eine Waschmaschine.
Das Vollbad der Wohnung ist hell gefliest und mit einer Badewanne ausgestattet – ideal zum Entspannen nach einem langen Tag.
Die helle und gut geschnittene 1-Zimmer-Wohnung überzeugt durch ihre geschickte Raumaufteilung, ihre angenehme Helligkeit und ihren besonderen Charme – ideal für Singles, Pendler oder Studierende, die zentrales Wohnen mit Komfort verbinden möchten. Ob als erste eigene Wohnung oder als stilvoller Rückzugsort – diese Immobilie bietet Ihnen die perfekte Kombination aus Lage, Funktionalität und Wohnqualität.
Die separate Küche ist kompakt, aber funktional geschnitten und bietet ausreichend Platz zum Kochen. Hier finden Herd, Ofen, Spüle sowie Ober- und Unterschränke ihren Platz. Zusätzlich befindet sich hier eine Stellmöglichkeit und der Anschluss für eine Waschmaschine.
Das Vollbad der Wohnung ist hell gefliest und mit einer Badewanne ausgestattet – ideal zum Entspannen nach einem langen Tag.
Die helle und gut geschnittene 1-Zimmer-Wohnung überzeugt durch ihre geschickte Raumaufteilung, ihre angenehme Helligkeit und ihren besonderen Charme – ideal für Singles, Pendler oder Studierende, die zentrales Wohnen mit Komfort verbinden möchten. Ob als erste eigene Wohnung oder als stilvoller Rückzugsort – diese Immobilie bietet Ihnen die perfekte Kombination aus Lage, Funktionalität und Wohnqualität.
Mehr anzeigen zum Thema Lage
Lage
Diese charmante 1-Zimmer-Wohnung befindet sich im Doormannsweg 22 im begehrten Stadtteil Eimsbüttel. Diese Gegend kombiniert urbanes Flair mit angenehmer Ruhe und einer hervorragenden Infrastruktur. Mit seiner perfekten Mischung aus urbanem Leben, ruhiger Wohnatmosphäre und vielfältigen Freizeitmöglichkeiten ist diese Wohnlage ideal für alle, die ein komfortables und gut angebundenes Zuhause suchen.
Die U-Bahn-Station Lutterothstraße (U2) ist lediglich acht Gehminuten entfernt und bringt Sie in weniger als zehn Minuten in die Innenstadt. Zudem befinden sich mehrere Buslinien in unmittelbarer Nähe, die eine flexible Mobilität ermöglichen. Die Autobahnen A7 und A1 sind mit dem Auto innerhalb von zehn Minuten zu erreichen.
Für den täglichen Bedarf bietet die nur 600 Meter entfernte Osterstraße eine große Auswahl an Supermärkten, Drogerien, Bäckereien und Apotheken. Auch kleine Boutiquen, Feinkostläden und individuelle Geschäfte prägen das Viertel. Zudem lädt der Wochenmarkt am Else-Rauch-Platz zum entspannten Einkaufen ein. Auch kulinarisch kommen Sie hier voll auf Ihre Kosten. Von gemütlichen Cafés über trendige Bistros bis hin zu gehobenen Restaurants ist für jeden Geschmack etwas dabei.
Für Freizeit und Erholung bietet sich der nahegelegene Wehbers Park an – ideal für Spaziergänge oder sportliche Aktivitäten. Zudem ist das traditionsreiche Kaifu-Bad in zehn Gehminuten erreichbar und bietet ein großes Sport- und Wellnessangebot.
Die U-Bahn-Station Lutterothstraße (U2) ist lediglich acht Gehminuten entfernt und bringt Sie in weniger als zehn Minuten in die Innenstadt. Zudem befinden sich mehrere Buslinien in unmittelbarer Nähe, die eine flexible Mobilität ermöglichen. Die Autobahnen A7 und A1 sind mit dem Auto innerhalb von zehn Minuten zu erreichen.
Für den täglichen Bedarf bietet die nur 600 Meter entfernte Osterstraße eine große Auswahl an Supermärkten, Drogerien, Bäckereien und Apotheken. Auch kleine Boutiquen, Feinkostläden und individuelle Geschäfte prägen das Viertel. Zudem lädt der Wochenmarkt am Else-Rauch-Platz zum entspannten Einkaufen ein. Auch kulinarisch kommen Sie hier voll auf Ihre Kosten. Von gemütlichen Cafés über trendige Bistros bis hin zu gehobenen Restaurants ist für jeden Geschmack etwas dabei.
Für Freizeit und Erholung bietet sich der nahegelegene Wehbers Park an – ideal für Spaziergänge oder sportliche Aktivitäten. Zudem ist das traditionsreiche Kaifu-Bad in zehn Gehminuten erreichbar und bietet ein großes Sport- und Wellnessangebot.
Mehr anzeigen zum Thema Lage
Energieausweis
- Nutzungsart
- Anlage
- Baujahr lt. Energieausweis
- 1968
- Endenergieverbrauch
- 155,3 kWh/(m²a)
- Energieausweis
- Verbrauchsausweis
- Energieausweis gültig bis
- 13.08.2027
- Energieeffizienzklasse
- E
Ihr Ansprechpartner
Herr Andreas Hermsdorf
Reinholz & Hermsdorf Immobilien GmbH
- Tel.:
- 040 4711260
Stahltwiete 21
22761 Hamburg